Flächennutzungsplan 2025
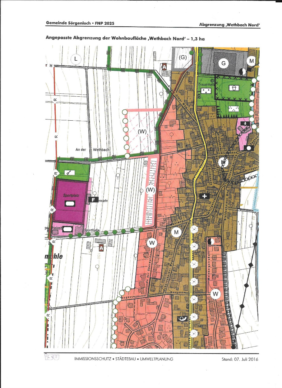
Im Flächennutzunngsplan 2025 wird die bauliche Entwicklungsmöglichkeit von Sörgenloch festgeschrieben. Der Flächennutzungsplan 2025 sieht für Sörgenloch das Baugebiet „Wethbach Nord“ mit 1,3 ha vor. Darüber hinaus ist eine Gewerbeentwicklung von 0,5 ha vorgesehen. Hier die Planungen in der Skizze:


Unser Sörgenloch erhalten
In Sörgenloch wohnt man gerne. Die Nähe zum Rhein-Main-Gebiet und gleichzeitig die dörflich-ländliche Struktur machen den besonderen Reiz von Sörgenloch aus. Durch die direkte Anbindung an Nieder-Olm hat Sörgenloch eine besonders gute Verkehrsanbindung an Busse, Bahnen, Autobahn, Schulen, Einkaufsmöglichkeiten, medizinische und gesundheitliche Versorgung. Wir machen uns durch eine nachhaltige Ortspolitik dafür stark, dass der dörfliche, naturnahe Charakter von Sörgenloch in Mitten des Rhein-Main-Gebietes und die hohe Lebensqualität erhalten bleiben.